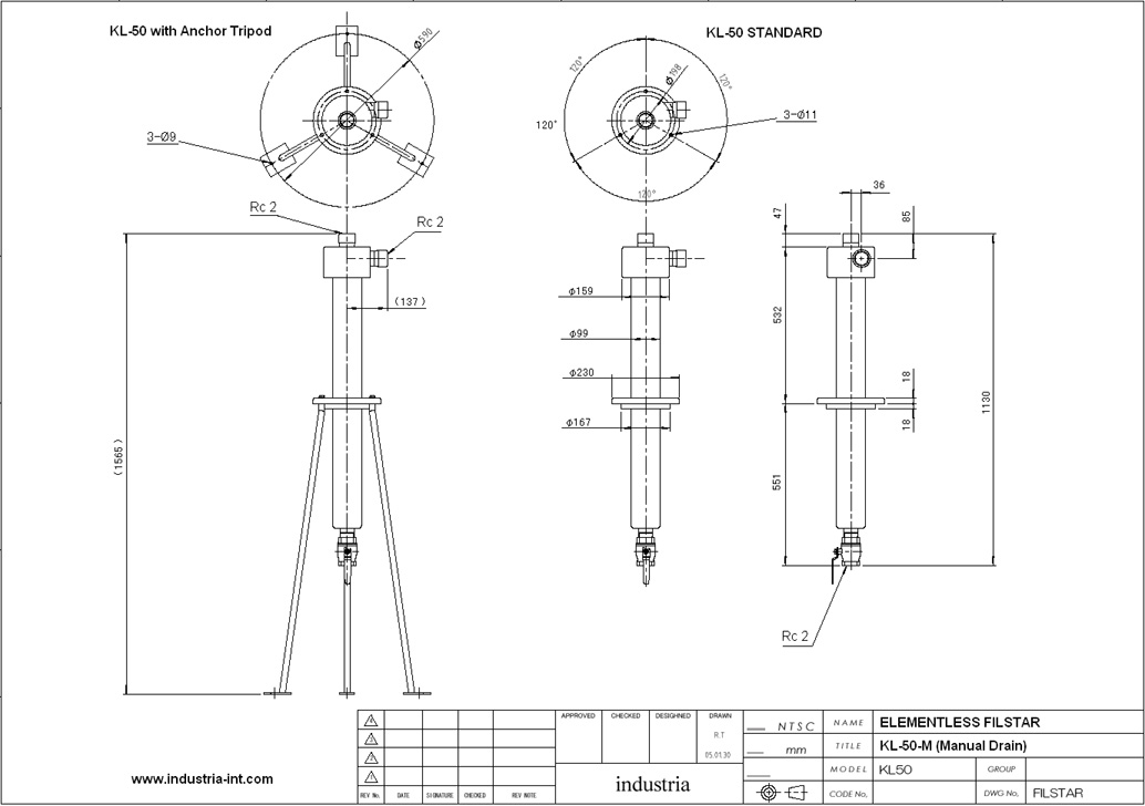
ELEMENTLESS FILSTAR
KL-50-M
(
Manual
Drain Type)